Grundrisse & Kosten
Grundrisse –
verfügbare Wohnungen
Die hier gezeigten 2-Zimmer-Wohnungen sind aktuell noch verfügbar.


Die Kosten –
Beispiele
Bauen ist teuer, vor allem im schönen Münster. Wir haben hier ein paar Beispiele für Dich zusammengestellt, damit Du einen ersten Eindruck bekommst. Diese Preise sind natürlich nur geschätzt und nicht verbindlich.
Bitte behalte im Kopf, dass wir durch die Holzbauweise und die hohen Anforderungen an die Nachhaltigkeit ein qualitativ sehr hochwertiges Gebäude planen.
2 Zimmer Wohnung
55 m² mit Terasse
Renate* wohnte bisher in einer Doppelhaushälfte. Ihre beiden Kinder sind vor kurzem ausgezogen. Nun findet sie das Haus zu groß, außerdem ist es teuer im Unterhalt. Sie wünscht sich eine altersgerechte, pflegeleichte Wohnung mit netten Nachbarn.
Zwei Zimmer reichen ihr aus, da ihr Besuch in dem gemeinschaftlichen Gästezimmer übernachten kann.
Kosten für die Wohnung:
ca. 319.000€ inkl. aller Kaufnebenkosten**
Zusätzlich profitiert sie von:
– dem Gemeinschaftsgarten
– dem gemeinschaftlichen Gästezimmer
– dem großen Gemeinschaftsraum
3 Zimmer Wohnung
80 m² mit Balkon
Sami* und Thomas* sind schon länger auf der Suche nach einer Eigentumswohnung aber auf dem schwierigen Wohnungsmarkt in Münster haben sie bisher nichts Passendes gefunden.
Da Thomas viel Homeoffice macht, ist ein eigenes Büro für ihn unerlässlich. Sami hingegen braucht einen Platz, wo er an seinen Fahrrädern schrauben kann.
Kosten für die Wohnung:
ca. 464.000€ inkl. aller Kaufnebenkosten**
Zusätzlich nutzen die beiden gerne:
– den Gemeinschaftsgarten
– die gemeinschaftliche Werkstatt
– dem gemeinschatlichen Gästezimmer
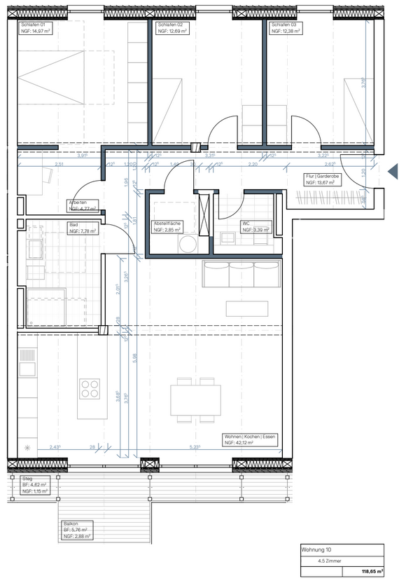
4,5 Zimmer Wohnung
110 m² mit Balkon
Familie Nowak* besteht aus zwei großen und zwei kleinen Münsteraner:innen. Bei ihnen ist immer etwas los. Sie interessieren sich für die B³OX, weil die Kinder im Gemeinschaftsgarten immer jemanden zum Spielen finden.
Kosten für die Wohnung:
ca. 638.000€ inkl. aller Kaufnebenkosten**
Zusätzliche Kosten für 6m² Kellerraum: ca. 12.000€
Zusätzlich profitieren sie von:
– dem Gemeinschaftsgarten
– dem Gemeischaftsraum für Kindergeburtstage
– der Werkstatt
– dem gemeinschatlichen Gästezimmer
*Beispielnamen, keine Anlehnung an echte Personen
**Für einen Tiefgaragenstellplatz (45.000€) oder einen Kellerraum (2.000€/m²) fallen zusätzliche Kosten an
